メール

新着メールを
受け取る

アリヴィオ

アリヴィオ

1LDK〜2LDK

埼玉県さいたま市大宮区

所在地
埼玉県さいたま市大宮区三橋2丁目335 Google Maps
アクセス
  • JR京浜東北線 大宮駅 バス5分、並木公園 バス停 徒歩5分
  • JR湘南新宿ライン 大宮駅 徒歩28分
  • JR埼京線 大宮駅 徒歩28分
築年月
2023年7月上旬
間取り
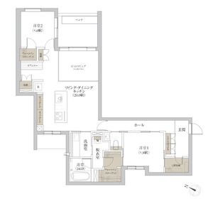
1LDK(6戸)・2LDK(5戸)
総階数
3階建て

間取り

家賃・管理費

初期費用等

間取り・占有面積・階数

203号室

14.7万円

管理費 0.9万円

なし

1ヶ月

1LDK

54.87㎡ / 2階

  • ハイグレード
  • ZEH
おすすめポイント
ホテルライク仕様の積水ハウス施工のシャーメゾン!(203号室オススメポイント)
メール

空室お知らせ
メールを受け取る