ポイントを貯めて、
住替え時の家賃が最大3ヶ月無料に!
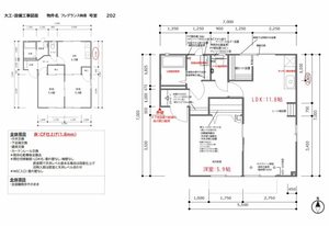
フレグランス絢香 0202号室
5.4万円
管理費等 0.39万円
1LDK
(42.77㎡)
- 敷金・礼金
- なし・1ヶ月
- 所在地
- 長野県上田市古里 Google Maps
- アクセス
-
- しなの鉄道 上田駅 距離4.4km
- 築年月
- 1996年11月
- 入居
- 即時
画像一覧 16
















電話でお問い合わせ
積水ハウスシャーメゾンPM中部株式会社 長野賃貸営業所
0570-075-213
- 営業時間
- 10:00~17:00
- 定休日
- 土曜日・日曜日・祝祭日
※ お問い合わせ後に店舗から折り返しのお電話がある可能性がございます。
















