メール

新着メールを
受け取る

ロータス菊名 Ⅱ

ロータス菊名 Ⅱ

1LDK〜2LDK

神奈川県横浜市港北区

所在地
神奈川県横浜市港北区菊名5丁目1-28 Google Maps
アクセス
  • 東急東横線 菊名駅 徒歩5分
  • 東急東横線 大倉山駅 徒歩19分
  • JR横浜線 新横浜駅 徒歩21分
築年月
2016年3月下旬
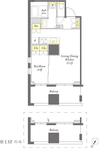
間取り
1LDK(3戸)・2LDK(2戸)
総階数
2階建て

現在、空室はありません

おすすめポイント
☆wi-fi(U-NEXT、180日間無料視聴コンテンツ有)(101号室オススメポイント)
メール

空室お知らせ
メールを受け取る