ポイントを貯めて、
住替え時の家賃が最大3ヶ月無料に!
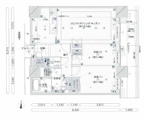
グランドメゾン御園座タワー 2707号室
29.9万円
管理費等 2万円
2LDK
(71.19㎡)
- 敷金・礼金
- 2ヶ月・2ヶ月
- 所在地
- 愛知県名古屋市中区栄1丁目 Google Maps
- アクセス
-
- 名古屋市営地下鉄東山線 伏見駅 徒歩1分
- 築年月
- 2017年11月
- 入居
- 即時
画像一覧 12











電話でお問い合わせ
積和レント株式会社 シャーメゾンショップ名駅店
0120-721-037
- 営業時間
- 10:00~17:00
- 定休日
- 水曜日・祝祭日
※ お問い合わせ後に店舗から折り返しのお電話がある可能性がございます。



















